BETHUNE GARDENS LIBRARY
Located on an abandoned parking lot, between NYCHA housing, and adjacent to an elementary school, this library gives protected public space back to the community and lifts the democratic use of the laneway below into the building.
Navigating the often contradicting elements of choice, connectivity, and escape, this project uses the already successful elements of the local street scape to organize program, people, and resources within the library. Here, visitors navigate through stoops, perches, and wide boulevards as they sift through books, work together, and find focus.
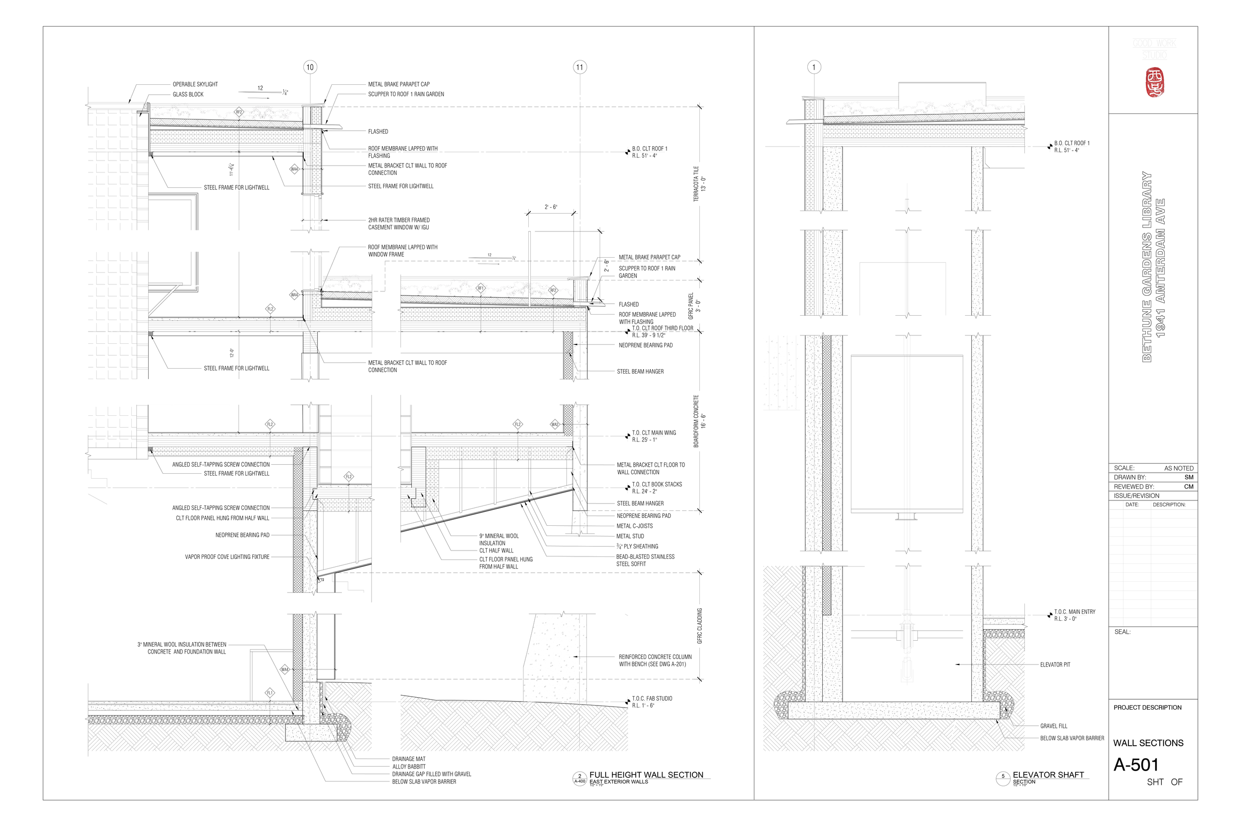
The majority of the structure is mass timber including floor panels, beams, columns, and core. The “floating” effect is achieved by the concrete exterior wall, essentially functioning as a ring beam supporting the upper levels. The wall is then supported by large columns, carved to accommodate for seating and planting.
The bowed exterior form allows for light to spill into the plaza, enhanced by light wells which also serve as organizing elements within the main library while maintaining the open street-like sightliness of the space.

